Coque BS
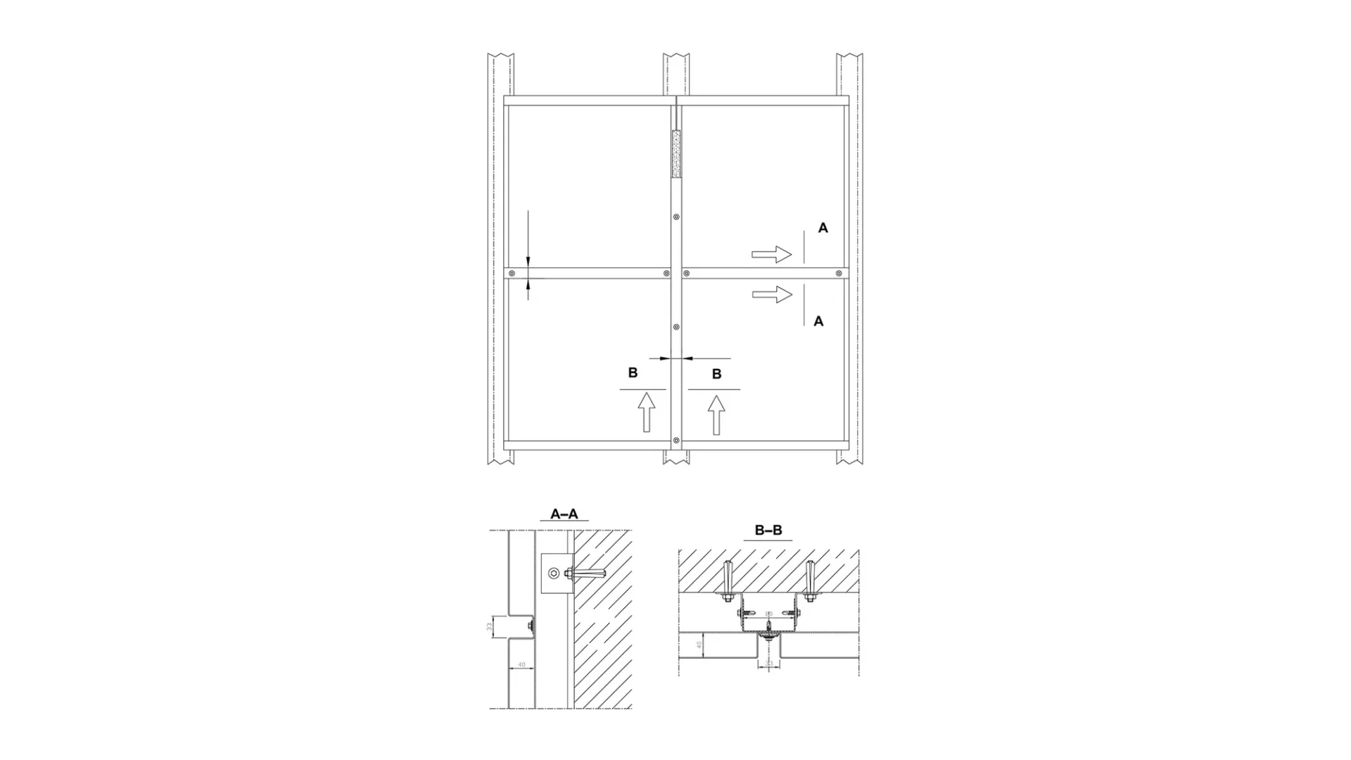
Coque BS is a closed joints metallic cassette intended for the realisation of flat facades. It is implemented by visible fixings at the bottom of the hollow joint on metal frames.
- Can be used for cladding facades on masonry, concrete or timber frame houses, including blind walls or with openings
- Suitable for new construction as well as for rehabilitation
- Installation is done from bottom to top on vertical galvanised U-type steel frames 1.5 mm thick
- In prepainted steel and stainless steel 1 mm and 1.5 mm thick & in aluminum 1.5 mm, 2 mm and 3 mm thick
- 33 mm hollow joint
- Visible fixings
- Optional vertical joint cover
- Perforations possible (contact us for validation)
